Apartamento 2 habitaciones con terraza
Hacemos inolvidable su visita a Barcelona.
Todo lo que necesitas saber
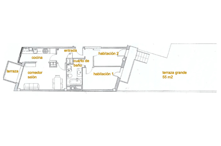
Este apartamento de dos habitaciones destaca por su amplia terraza privada de 55 m², ideal para relajarte al aire libre.
Está ubicado en una zona residencial muy tranquila, en un edificio moderno (2011) con ascensor, parking opcional e internet Wi-Fi gratuito. Todas las estancias cuentan con aire acondicionado y calefacción. La estación de metro Navas (L1) está a solo 1 minuto andando, y te conecta con el centro histórico en menos de 10 minutos, la Sagrada Familia en 3 paradas y el Centro Comercial Glòries en 2.
Se admiten pequeños animales con previo acuerdo y el propietario reside cerca. Precios transparentes: tasas, suministros, Wi-Fi y limpieza incluidos. Estancia mínima de 3 noches, fianza solicitada. Parking opcional en el edificio: 100 €/semana.
Distribución de estancias
Nuestros apartamentos están pensados para tu comodidad

Cocina Equipada
Microondas, frigorífico-congelador, placas a gas, lavadora, lavavajillas, horno eléctrico, cafetera y vajilla.

Habitación grande
2 camas individuales juntas, armario y salida al balcón.

Exteriores
Una pequeña y una amplia de 55 m², equipada con mesa de jardín y tendedero.

Salón-Comedor
Mesa, sillas, TV pantalla plana LCD con TDT, sofá cama doble y acceso a la terraza.

Habitación pequeña
1 cama individual, armario, pequeño escritorio y salida al balcón.

Baño Privado
Bañera, bidé, lavabo y WC.
¿Necesitas más información?
¡No dudes en ponerte en contacto con nosotros!